Dove siamo
La Villa di Faragola occupa un’area estesa nella valle del Carapelle, a circa 5 km da Ascoli Satriano (Ausculum) e in prossimità dell’antica via Aurelia Aeclanensis, che collegava Herdonia con Aeclanum e metteva in comunicazione la via Appia e la via Traiana.
Le prime fasi dell’insediamento mostrano che la villa sorse su resti di un insediamento daunio del IV-III secolo a.C., con tracce di frequentazioni più antiche. In età romana (I-III secolo d.C.) il complesso si configura come una fattoria / villa rustica, con strutture sobrie e funzionali che gestivano attività agricole e di controllo del territorio.
La villa conobbe il suo apice durante la tarda antichità (IV-VI secolo d.C.). In questa fase si realizzarono imponenti interventi di trasformazione e ampliamento: fu dotata di terme monumentali, ambienti decorativi, e una lussuosa sala da pranzo estiva (la cenatio). L’impianto tardoantico fu costruito sopra e in parte riutilizzò le strutture precedenti, con grande attenzione alla monumentalità e all’effetto scenico.
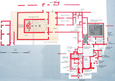
Dal punto di vista planimetrico, la villa tardoantica presenta una pianta articolata che si sviluppa su orizzonti multipli: un peristilio centrale, corpi di fabbrica disposti attorno, un sistema termale e ambienti di servizio. Alcuni ambienti residenziali furono spostati al piano superiore, evidenziando una trasformazione verticale tipica dell’epoca tardoantica.
Generalmente il nucleo della villa si dispone attorno a un ampio cortile porticato: al lato occidentale, ambienti già esistenti (forse della fase precedente) furono inglobati nella nuova struttura; verso il lato orientale, si articolano gli spazi termali e i collegamenti con la cenatio.
Un elemento interessante è la possibilità che la villa appartenesse alla gens senatoria dei Cornelii Scipiones Orfiti, suggerita da iscrizioni rinvenute nelle vicinanze e da analogie con altre proprietà aristocratiche in Puglia.
In età altomedievale, la villa non fu semplicemente abbandonata: gran parte dei suoi ambienti furono riutilizzati come abitazioni, officine, magazzini. Il sito assunse le caratteristiche di un piccolo villaggio rurale (curtis), offrendo un raro esempio di continuità insediativa che attraversa la fine dell’impero e l’alto medioevo.
Risolvi gli enigmi archeologici per scoprire i tesori della villa romana!
Per salvare i tuoi progressi e giocare al gioco dell'Archeologo di Faragola, devi prima effettuare l'accesso o creare un account.
La registrazione è immediata e gratuita!
Tentativi: